INQUIRE ABOUT THIS LISTING

INQUIRE ABOUT THIS LISTING

This question is for testing whether or not you are a human visitor and to prevent automated spam submissions.
Thumbnail
Thumbnail
Thumbnail
Thumbnail
Thumbnail
Thumbnail
Thumbnail

112 Dukes County Avenue, Oak Bluffs

$599,000

Downtown Oak Bluffs B1-zoned parcel offering a rare mixed-use development opportunity in one of Martha’s Vineyard’s most iconic and active locations. Conveniently located near Inkwell Beach, Oak Bluffs Harbor, the Steamship Authority, day-trip ferry services, Circuit Avenue, and Ocean Park.

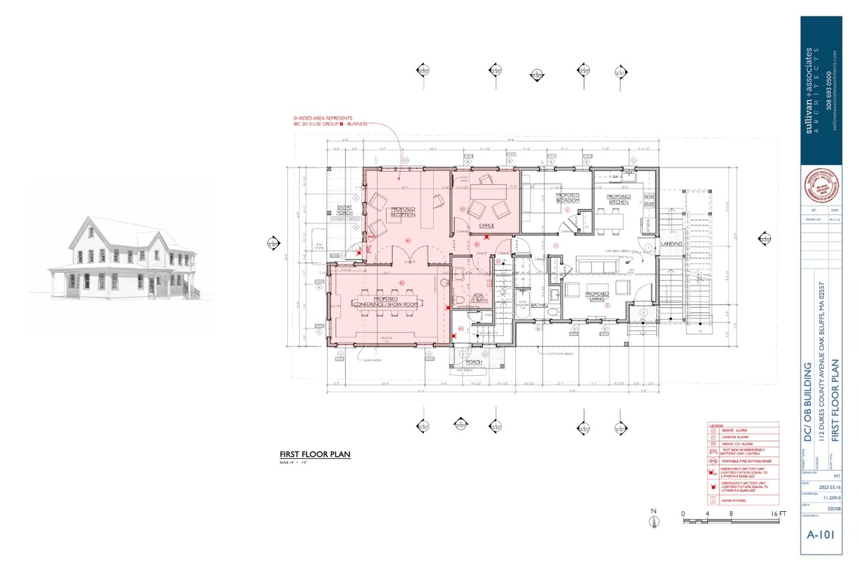
This level lot includes an existing poured concrete foundation and Martha’s Vineyard Commission–approved plans by Sullivan & Associates Architects for a classic Vineyard-style, 2.5-story mixed-use building. The design includes ground-floor commercial space and two one-bedroom residential apartments, creating three rentable units in total.

With plans in place and foundational work already completed, the property offers a clear path forward as a mixed-use development or, alternatively, the opportunity to construct a traditional two-bedroom residence in downtown Oak Bluffs. Some photos virtually altered for seasonality.

HIGHLIGHTS

Link ID 44094
Acreage 0.07
Land

FEATURES AND AMENITIES

Link ID
44094
Price
$599,000
Acreage
0.07
Zoning
B1
Water
Town
Sewer
Town
2026 Tax Assessment
$346,700
Building Assessment
$2,600
Land Assessment
$344,100
Estimated Taxes
$1,730
Fireplaces
None
Listing Broker
Wallace & Co. Sotheby's

112 Dukes County Avenue, Oak Bluffs

Copyright 2026 LINK MV. All rights reserved. Information deemed reliable but is not guaranteed.
Buyer note, 2% Land Bank fee.
X